progetti

Progetto MP

Sopralluogo

Progettazione

Preventivo

Materiali e finiture

Realizzazione

Consegna

Dal concept alla realtà

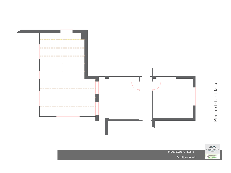
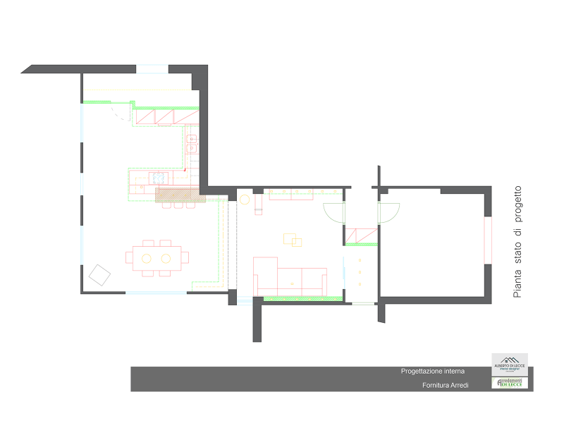
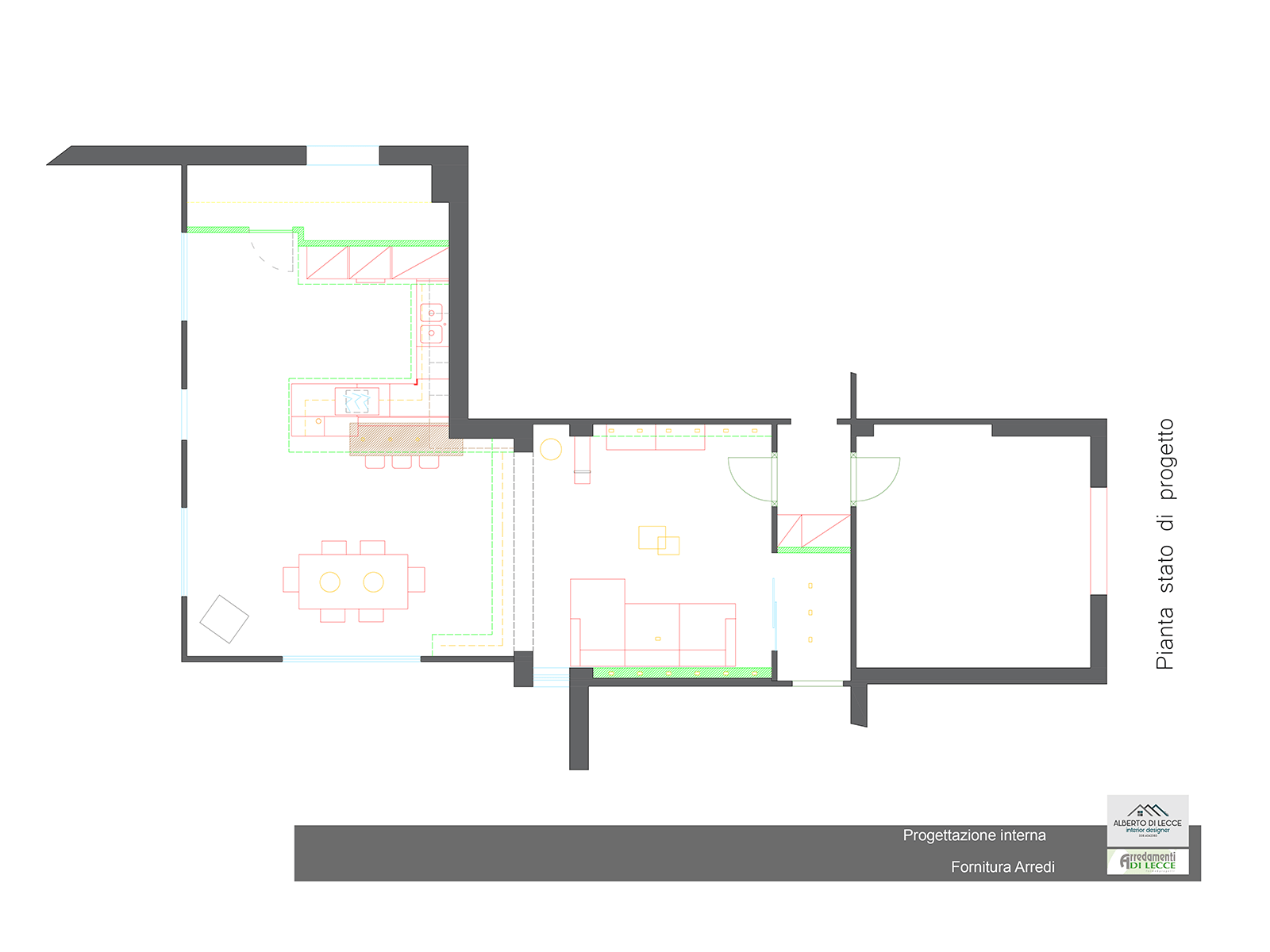
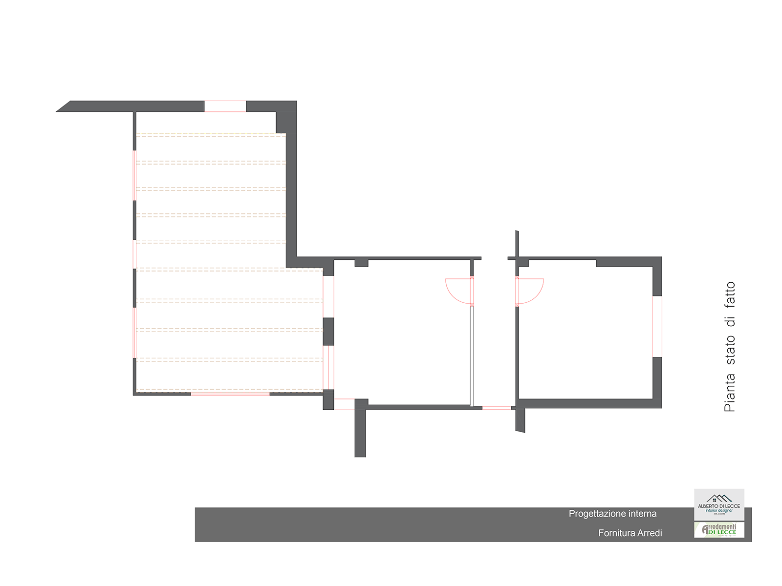
Progetto che nasce dall’esigenza dei clienti di avere un open space importante nelle dimensioni; è bastato abbattere una parete per ottenere una superfice grande, nella quale siamo riusciti a inserire tre aree distinte: area cucina, area pranzo e area living relax. In uno stile leggero e contemporaneo, con colori tenui e con solo l’inserimento di carte da parati a dare importanza alla parete TV e alla parete con porta a scomparsa. 

Caratteristica del progetto sono l’assoluta linearità e la sospensione del cartongesso, che non compromette l’estetica del tetto in legno

Sopralluogo
Progettazione | Renderizzazione
Consegna

Richiedi una consulenza gratuita